• about
    • approach + services
    • our team
    • recognition
  • work
  • the lab
  • news
  • contact
next
project
previous
project

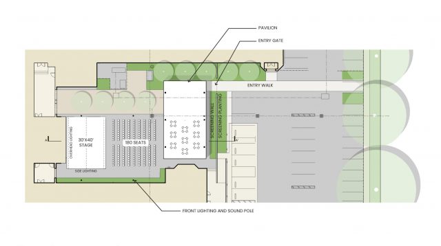
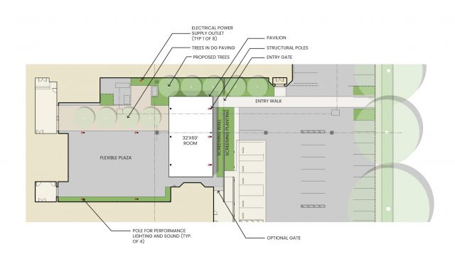
CLARA Courtyard


The Courtyard Concept Plan for CLARA creates a vibrant and multifunctional new courtyard space for outdoor educational programming and performances that CLARA hosts.  The design creates an inviting, flexible and comfortable courtyard space that is framed by a lucid pavilion structure – a scaffold for the courtyard performances to benefit year-round, day/night use by CLARA tenants and the community at large. Improvements to existing fencing, parking, and additional garden planting are proposed to established an outward, community focused identify to CLARA.

Location

Sacramento, CA

Size

10,000 SF

Project Type

Gardens
Institutional
Urban Design

Date

2020-2021

Role

Landscape Architect

Contributor

endrestudio architects | engineers

Client

CLARA (E. Claire Raley Studios for the Performing Arts)

previous
project
next
project

For project inquiries,
please contact us at:
info@atlaslab.com
916-290-9366

1610 R Street Suite 300
Sacramento, CA 95811
Copyright © 2026 ATLAS Lab Inc., 2025 All rights reserved.

Get the Latest

  • about
  • work
  • the lab
  • news
  • contact
Copyright © 2026 ATLAS Lab Inc., 2025 All rights reserved.